Makléř: Ing. Leona Drozdová
Telefon: 778 479 ...
E-mail: leona.d ...
Zobrazit celý kontaktTelefon: 778 479 411
E-mail: leona.drozdova@stingholding.cz
Nemovitost nabízí
Realitní kancelář STING, s.r.o.
1.máje 540, 739 61 Třinec
Zobrazit kontakt na RK800 103 010
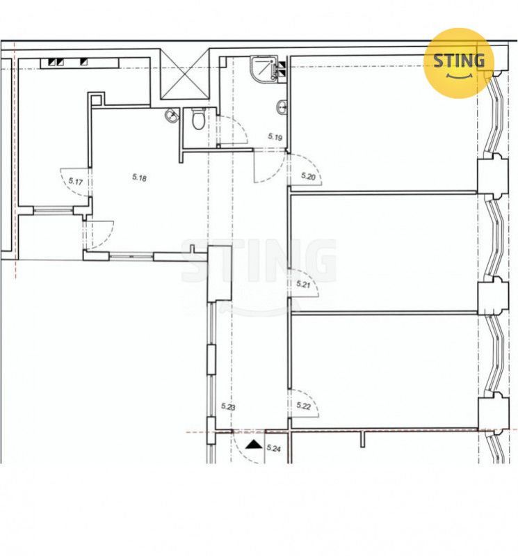
Nabízíme k pronájmu prostorný byt o velikosti 117,5 m2 a dispozici 3,5 + 1 ve 5. patře domu na ulici Denisova v centru Ostravy. Byt má praktické rozložení samostatná kuchyně, obývací pokoj, dva neprůchozí pokoje a menší pokoj vhodný jako pracovna, šatna nebo pokoj pro hosty. Koupelna a WC jsou oddělené. Dispozice je vhodná jak pro rodinu, tak i pro spolubydlení. Velkou výhodou bytu je výhled do otevřeného prostoru směrem na park a okolní zástavbu, díky čemuž byt nepůsobí stísněně a má dostatek světla. Byt se nachází v atraktivní lokalitě s výbornou dostupností v bezprostřední blízkosti je jeden z největších dopravních uzlů v Ostravě (tramvaj, trolejbus, autobus i vlak), což umožňuje rychlé spojení po celém městě. V docházkové vzdálenosti se nachází Nová Karolina, úřady, banky, obchody i další občanská vybavenost. Parkování je možné formou rezidentního parkování, případně v okolí (např. Karolina). K nastěhování od 1.7.2026 Pro více informací nebo domluvení prohlídky nás kontaktujte. <a href="https://www.eurobydleni.cz/komercni-nemovitosti/komercni-objekty/brno-venkov/obec-cebin/pronajem/"><strong>Pronájem komerční objekty Čebín</strong></a>
Pronájem bytu 3+1, Ostrava, ul. Engelmüllerova
Nabízíme Vám jedinečný pronájem bytu 3+1, s podlahovou plochou 65 m2 který se nachází v blízkosti centra Ostravy na ulici Engelmüllerova. Byt v…
Pronájem bytu 3+1, Arbesova, Přívoz, 13900 Kč/měs, 76 m2
Krásný a slunný byt 3+1 k dlouhodobému pronájmu - Moravská Ostrava a Přívoz Hledáte pohodlné bydlení v klidné části centra Ostravy s výbornou…
Pronájem bytu 3+1 Ostrava na Eurobydleni.cz