Makléř: Mgr. Jiří Pola
Telefon: 555 333 ...
E-mail: info@si ...
Zobrazit celý kontaktTelefon: 555 333 794, 607 700 019
E-mail: info@sian.cz
Nemovitost nabízí
SIAN
Závodní 2006/101, 700 30 OSTRAVA 30
Zobrazit kontakt na RK
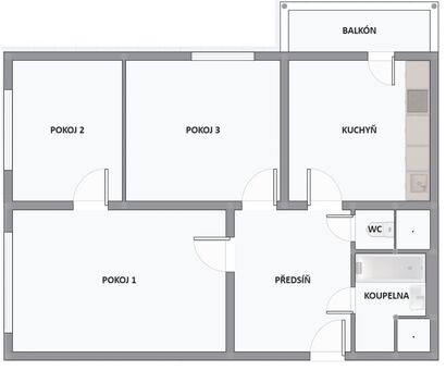
Exkluzivně nabízíme k prodeji zrekonstruovaný byt 3+1 s lodžií, ul. Čujkovova, Ostrava Zábřeh Nabízíme k prodeji světlý a prakticky řešený byt 3+1 s lodžií o celkové ploše 69 m (včetně lodžie), situovaný v 7. podlaží revitalizovaného panelového domu s výtahem. Byt prošel v roce 2022 kompletní rekonstrukcí a je ve velmi dobrém technickém stavu bez nutnosti dalších investic. Součástí je zděné bytové jádro, kuchyňská linka na míru, moderní koupelna s vanou, nové rozvody včetně elektroinstalace v mědi, nové omítky, podlahy (PVC) a interiérové dveře. Okna jsou vybavena žaluziemi. Dispozičně byt nabízí prostornou čtvercovou kuchyni se vstupem na lodžii, navazující obývací pokoj a dvě samostatné neprůchozí místnosti. Výhodou je také velká předsíň s potenciálem pro vestavěné skříně a dostatek úložného prostoru. Dům je po revitalizaci (zateplení, výtahy) a nachází se v bezprostřední blízkosti Bělského lesa, který nabízí ideální podmínky pro relaxaci a volnočasové aktivity. V okolí je kompletní občanská vybavenost školy, školky, obchody, MHD, aquapark i další služby. Byt je aktuálně pronajat spolehlivým nájemcům. Nájemní vztah může pokračovat, což z něj činí zajímavou investiční příležitost, případně je možné byt uvolnit pro vlastní bydlení. <a href="https://www.eurobydleni.cz/byty/2_kk/ostrava/obec-ostrava/prodej/"><strong>Prodej bytu 2+kk Ostrava</strong></a>
Byt, 3+1, prodej, Patrice Lumumby, Zábřeh, Ostrava, Ostrava-město
Exkluzivní nabídka: Slunný dr. byt 3+1 s lodžií v oblíbené části Ostravy Zábřehu (ul. Patrice Lumumby). Hledáte ideální bydlení pro rodinu v…
Byt 3+1 s panoramatickým výhledem, novým prostorným výtahem a sklepem na ulici Plk. Rajmunda Prchaly
Nabízím k prodeji prostorný a světlý byt 3+1 o užitkové ploše 68 m, nacházející se v žádané lokalitě OstravyPoruby, na adrese Plk. Rajmunda Prchaly.…
Prodej bytu 3+1 Ostrava na Eurobydleni.cz