Makléř: Opělová Dominika
Telefon: 724 377 ...
E-mail: opelova ...
Zobrazit celý kontaktTelefon: 724 377 831
E-mail: opelova@estyholding.cz
Nemovitost nabízí
ESTY holding a.s.
Národní 135/14, Praha
Zobrazit kontakt na RK777 114 302
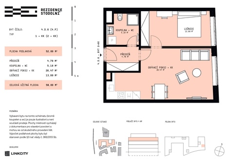
Nabízíme k prodeji byt 2+kk v Rezidenci Stodolní. Byt 4.D.6 o velikosti 52,89 m2 se nachází ve 4. nadzemním podlaží a nabízí východní orientaci. Velkou výhodou bytu je velikost ložnice, která může obsahovat šatnu. Dispozice zahrnuje také prostorný obývací pokoj s kuchyní, velkorysou koupelnu spojenou s WC a praktickou předsíň s prostorem pro úložné systémy. Byt nabízí flexibilitu díky možnosti chytrého a estetického oddělení jednotlivých zón pomocí stavebně předdefinované příčky, která z oficiální dispozice 1kk byt rozdělí na efektivní a velkorysé 2kk. Rezidence Stodolní představuje nejmodernější bytový projekt v Ostravě z dílny ateliéru Bogle Architects a je součástí prestižní proměny centra města. Nová rezidenční čtvrť s pěší zónou a Galerií PLATO v bezprostřední blízkosti nabízí kombinaci moderního bydlení, klidu a vysokého standardu bezpečí. Nabízený byt je vhodný pro moderní pár, menší rodinu nebo jako investice s výborným potenciálem. Byt je vybaven plovoucími podlahami, přičemž barevné provedení standardu lze přizpůsobit přání klienta. Kombinace kvalitních oken s trojitým zasklením, solární elektrárny a centrálního horkovodního vytápění zajišťuje nízké provozní náklady. Budovy jsou dle energetického štítku zařazeny do kategorie „B - vysoce úsporné“. V podzemních garážích Rezidence Stodolní je k dispozici přibližně 120 parkovacích míst. Nabízena budou samostatná parkovací stání, stání se sklepní kójí i samostatné sklepy. Parkovací místa a sklepy nejsou zahrnuty v ceně bytu. Garáže budou vybaveny přípravou pro dobíjení elektromobilů, což zaručuje pohodlí i do budoucna. Výstavba projektu Rezidence Stodolní je již zahájena, termín dokončení je plánovaný na září roku 2027. Pro doplňující informace nás můžete kontaktovat telefonicky nebo osobně v kancelářích Organica - Scott-Weber, náměstí Biskupa Bruna 3399/5, 702 00 Moravská Ostrava. Schůzky si prosím rezervujte předem e-mailem nebo telefonicky. Těšíme se na setkání s Vámi.
Prodej bytu 2+kk, 55 m2, Ostrava, ul. Chittussiho
Nabízíme k prodeji moderní byt 2+kk o užitné ploše 55 m2, nacházející se ve 2. nadzemním podlaží cihlového bytového domu v lukrativní části Slezské…
Prodej bytu 2+kk, 52 m2, Ostrava, ul. Bohumíra Četyny
Hledáte startovací bydlení, které si můžete upravit přesně podle svých představ? Právě jste ho našli. Nabízíme byt o dispozici 2+kk v zachovalém…