Makléř: Ing. Natálie Skřičková
Telefon: 723 044 ...
E-mail: skricko ...
Zobrazit celý kontaktTelefon: 723 044 951
E-mail: skrickova@reality-proradost.cz
Nemovitost nabízí
REALITY PRORADOST
Opletalova 1417/25, 110 00 Praha 1
Zobrazit kontakt na RK704 532 094
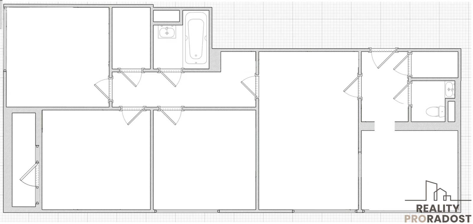
Jednotka v družstevním vlastnictví o dispozici 4+1 se zasklenou lodžií, která se nachází v klidné části Poruby na ulici nám. Antonie Bejdové v Ostravě. Jednotka se nachází v 5. patře domu po kompletní revitalizaci - 2 výtahy, které stojí přímo na patře, plastová okna, zateplení, zvonky, suché sklepy... V domě jsou k dispozici společné prostory domu a to kočárkárna a kolárna. Celková plocha jednotky činí 90 m2 včetně lodžie o velikosti 3 m2 a sklepní kóje o velikosti 1,5 m2. Interiér je tvořen kuchyní, obývacím pokojem, 3 samostatnými pokoji z nichž má jeden výstup na zasklenou lodžii, samostatnou toaletou, koupelnou, spíží, šatnou a prostornou chodbou. K bytu náleží sklepní kóje. Pokoje jsou orientovány na 2 světové strany. Kuchyňská linka do L kombinuje dekory lesklé bílé a pracovní desky z masivu. Součástí linky jsou i vestavěné spotřebiče - myčka, plynová varná deska, odsavač par, trouba, mikrovlnná trouba a granitový dřez s baterií. V kuchyni je dostatek prostoru na umístění jídelního stolu. Kuchyně je orientována do vnitrobloku do zeleně. Obývací pokoj je také orientován do zeleně, stejně jako jeden ze tří samostatných pokojů. Zbylé dva pokoje nabízí výhled na Beskydy. V koupelně se nachází prostorná vana, umyvadlo, úložný prostor. Výhodou bytu je jeho variabilita a množství úložného prostoru. Úložný prostor je hned u vstupních dveří v podobě šatny, tak také u koupelny jako samostatná spíž a dále množství úložného prostoru na chodbě. Technický stav bytu - byt procházel před cca 7-10 lety částečnou rekonstrukcí - nová elektřina v kuchyni a předsíni, nová kuchyňská linka včetně spotřebičů, laminátové podlahy, interiérové dveře včetně prosklených dveří mezi předsíní a obývacím pokojem, ... Nábytek není součástí prodeje. Nízké měsíční náklady - FO 2 493 Kč. Celkové služby pro 1 osobu 4 843 Kč/měs. Vynikající poloha u Duhy, která nabízí veškerou občanskou vybavenost v docházkové vzdálenosti - supermarket Albert, restaurační a sportovní vyžití, ZŠ, SŠ, dětské hřiště, pošta, knihovna,... Parkování je možné přímo u domu. MHD je vzdáleno cca 180 m (zas. autobusu Duha). Kromě klasické prohlídky nabízím také prohlídku v reálném čase přes Whatsapp či FaceTime.
Byt, 4+1, prodej, Ostrava, Ostrava-město
Exklusivně nabízíme prodej mezonetové bytové jednotky 4+1, na ul.Hulvácká v Ostravě - Zábřehu. Byt prošel v roce 2019 částečnou rekonstrukci a v roce…
Prodej, byt 4+1, 78 m2, Ostrava, ul. Karla Pokorného
Nabízím Vám byt v jedné z nejklidnějších částí Ostravy - Poruby na ulici Karla Pokorného, kde oceníte především dostatek zeleně, nízkou zástavbu a…