Makléř: Consulting, a.s. Broker
Telefon: 800 100 ...
E-mail: okreali ...
Zobrazit celý kontaktTelefon: 800 100 164, 800 100 164
E-mail: okrealitnisluzby@bcas.cz
Nemovitost nabízí
Realityspolu
Avenir Business Park Radlická 751/113E, 158 00 Praha 5
Zobrazit kontakt na RK800 100 164
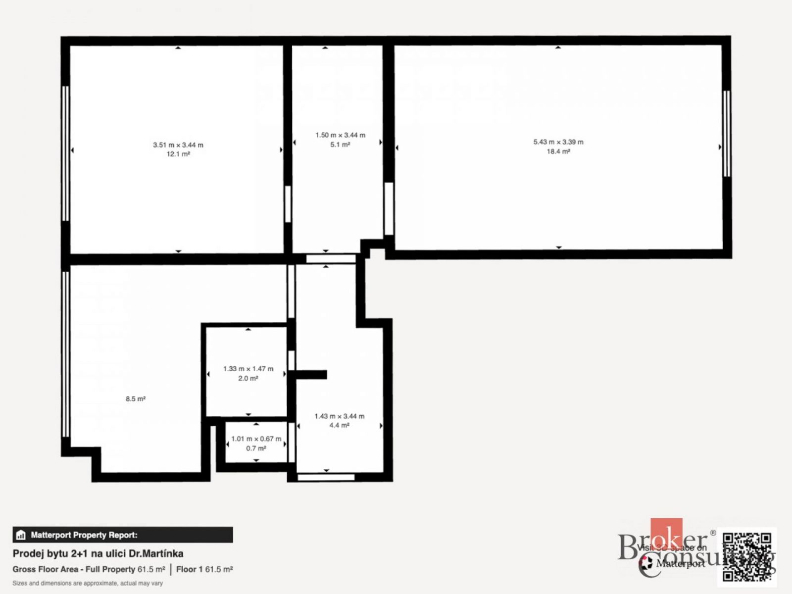
Nabízíme k prodeji byt v osobním vlastnictví o dispozici 2+1 a podlahové ploše 54 m, který se nachází ve 3. nadzemním podlaží bytového domu s výtahem na ulici Dr. Martínka 47 v Ostravě. Byt je v původním, udržovaném stavu, což dává novému majiteli ideální příležitost upravit si bydlení podle vlastních představ. Velkou výhodou je praktické dispoziční řešení oba pokoje jsou samostatné a neprůchozí, přístupné z předsíně. Dispozice tak nabízí dostatek soukromí a je vhodná jak pro vlastní bydlení, tak i jako investiční byt k pronájmu. Byt je orientovaný na sever a jih, díky čemuž je příjemně světlý během celého dne. Dům prošel rekonstrukcí a zateplením, což přispívá k vyššímu komfortu bydlení a lepší energetické efektivitě. Samozřejmostí je výtah a sklepní kóje, která poskytuje další úložný prostor. Lokalita: Jedná se o vyhledávanou lokalitu s kompletní občanskou vybaveností. V docházkové vzdálenosti najdete MHD, obchody, školy, školky, lékaře i další služby. Parkování je možné přímo u domu. Další informace: ústřední vytápění měsíční náklady: 1 650 Kč fond oprav + cca 4 050 Kč služby (teplo, voda, výtah, apod.) byt bude k dispozici k předání na konci května Byt je dobře financovatelný hypotečním úvěrem, se kterým Vám rádi pomůžeme. Pro lepší představu o dispozici doporučujeme projít si virtuální prohlídku, která je součástí prezentace. <a href="https://www.eurobydleni.cz/byty/2_1/karlovy-vary/obec-karlovy-vary/pronajem/"><strong>Pronájem bytu 2+1 Karlovy Vary</strong></a>
Prodej bytu 2+1, 44 m2, Ostrava, ul. Václava Košaře
Nabízíme k prodeji modernizovaný byt v klidné lokalitě Ostravy - Dubiny, na ulici Václava Košaře. Byt o původní dispozici 2+1, upravený na praktické…
Světlý byt 2+1 s potenciálem - OstravaJih, ul. Aloise Gavlase
Hledáte byt, který nabízí funkční dispozici, dostatek světla a možnost úprav podle vlastních představ? Tento byt 2+1 v osobním vlastnictví na ulici…
Prodej bytu 2+1 Ostrava na Eurobydleni.cz