Makléř: Lucie Krechterová
Telefon: 721 415 ...
E-mail: lucie.k ...
Zobrazit celý kontaktTelefon: 721 415 122
E-mail: lucie.krechterova@re-max.cz
Nemovitost nabízí
RE/MAX Centrum, Ostrava
Porážková 3339/46, 702 00 Moravská Ostrva
Zobrazit kontakt na RK
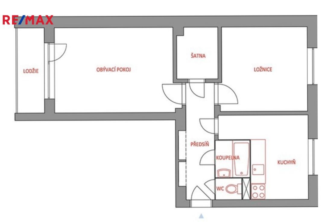
Prodej družstevního bytu 2+1 Ostrava, ulice Aviatiků Dovoluji si nabídnout k prodeji družstevní byt 2+1 se zasklenou lodžií, situovaný v klidné části Ostravy, na ulici Aviatiků. Byt je v původním stavu a představuje ideální příležitost k rekonstrukci dle vlastních představ nebo jako vhodná investice. Disponuje dvěma neprůchozími pokoji, samostatným WC, koupelnou, prostornou kuchyní a šatnou, orientovaný na dvě světové strany. V bytě jsou plastová okna, dům je zateplen, parkování poblíž domu. Náklady na bydlení: - Elektřina: cca 1 200 Kč - Plyn: cca 400 Kč - Zálohy + fond oprav + nájemné: 5 000 Kč V zálohách je zahrnuto: osvětlení společných prostor, vodné, ohřev TUV, vytápění, výtah a úklid společných prostor. Jedná se o klidnou lokalita s výbornou dostupností a občanskou vybaveností. Obchody, služby, škola a školka v docházkové vzdálenosti, zastávky MHD poblíž domu. Okolí nabízí dostatek zeleně a prostor pro volnočasové aktivity. Pro více informací mě prosím kontaktujte, ráda vám byt ukážu osobně. <a href="https://www.eurobydleni.cz/domy/rodinny-dum/praha-6/obec-ruzyne/prodej/"><strong>Prodej rodinného domu Praha 6, Ruzyně</strong></a>
Byt, 2+1, prodej, Edisonova, Hrabůvka, Ostrava, Ostrava-město
Exkluzivní prodej bytu 2+1 se dvěma balkóny Edisonova, Ostrava-Hrabůvka Nabízíme ke koupi světlý a velmi příjemný byt 2+1 o ploše 66,65 m (plocha…
Prodej, Byt 2+1, Ostrava
Nabízíme k prodeji byt 2+1 v osobním vlastnictví o výměře 49 m2, situovaný v oblíbené části Ostravy - Hrabůvky, na ulici Odborářská. Byt se nachází v…
Prodej bytu 2+1 Ostrava na Eurobydleni.cz