Makléř: Bc. Novák Daniel
Telefon: 296 399 ...
E-mail: info@mm ...
Zobrazit celý kontaktTelefon: 296 399 006
E-mail: info@mmreality.cz
Nemovitost nabízí
M&M reality holding a.s.
Krakovská 1675/2, 110 00 Praha 1
Zobrazit kontakt na RK800 100 446
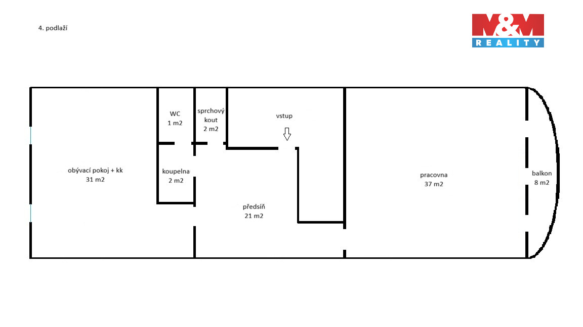
Nabízíme k pronájmu velkorysý byt v historickém srdci Opavy na Dolním náměstí. Jednotka se nachází ve 4. NP udržované kulturní památky. Díky rozloze 94 m2 a dvěma prostorným místnostem je byt ideální jako zázemí pro zahraniční zaměstnance nebo management. Hlavní parametry: Kapacita: Velké pokoje umožňují komfortní přespávání i pro více osob. Klidný režim: V domě sídlí kanceláře, proto je vyžadován klid. Ideální pro pracovníky, kteří hledají tiché prostředí pro odpočinek po směnách. Lokalita: Prestižní adresa v centru s veškerou vybaveností v pěší dostupnosti. Stav: Nemovitost je ve velmi dobrém stavu, připravena k okamžitému užívání. Hledáte-li pro své zaměstnance důstojné a klidné bydlení na úrovni, kontaktujte nás pro prohlídku.
Pronájem bytu 2+kk, se zahradou, 58m2, Opava, ul. Polní
Nabízíme pronájem prostorného bytu 2+kk, 58m2 se zahradou, v Opavě na ul. Polní. Byt se nachází v 2NP cihlového domu bez výtahu. V bytě je zděné…
Pronájem bytu 2+kk, 55 m s terasou ul. Ratibořská, Opava
Nabízíme k pronájmu světlý zrekonstruovaný byt o dispozici 2+kk a výměře 55 m s terasou, situovaný ve 2. nadzemním podlaží menšího bytového domu se…