Makléř: Ing. Vymětalíková Adéla
Telefon: 420 603 ...
E-mail: adela.v ...
Zobrazit celý kontaktTelefon: 420 603 885 715
E-mail: adela.vymetalikova@century21.cz
Nemovitost nabízí
CENTURY 21 3D Reality
Gregorova 1412/12, 741 01 Nový Jičín
www.century21.cz/kancelar-3d-reality
Zobrazit kontakt na RKvasrealitnipartner@century21.cz
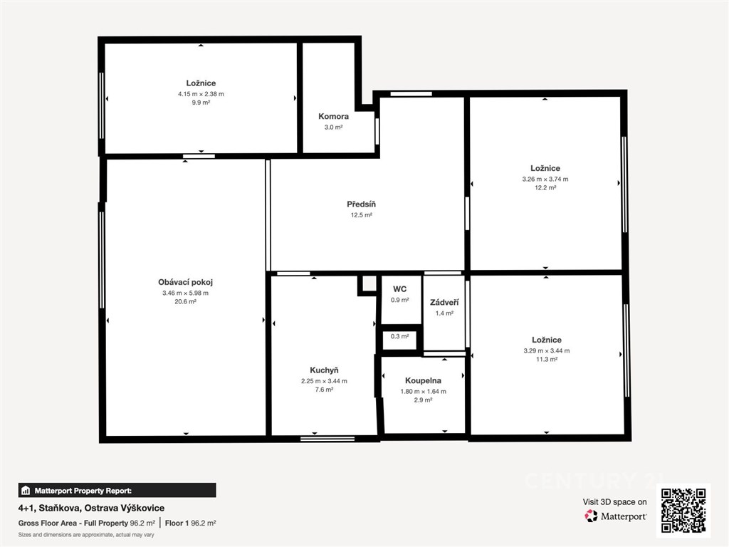
Hledáte bydlení v atraktivní lokalitě s výbornou dostupností do přírody i do městského centra? Tento slunný byt 4+1 v osobním vlastnictví na ulici Staňkova v OstravěVýškovicích je ideální volbou pro rodinu i jednotlivce. Byt se nachází ve 2. patře bytového domu v lokalitě, která přímo sousedí s Bělským lesem. Nabízí nejen příjemné bydlení, ale i skvělé zázemí. Prostorný obývací pokoj je propojen se vstupním prostorem a působí velmi příjemným a vzdušným dojmem. Každý ze tří dalších pokojů má samostatný vstup, stejně tak jako kuchyně. Kuchyni lze v případě zájmu propojit s obytným prostorem. Koupelna a WC jsou oddělené. U vstupu do bytu se nachází prostorná komora k uložení věcí. K bytu máte k dispozici vnitřní parkovací stání přímo v domě, prostorný balkon orientovaný na jihozápad, který vám poskytne dostatek prostoru pro relaxaci a sklep pro uskladnění věcí. Vybavení a rekonstrukce: Rekonstrukce koupelny proběhla před několika lety V bytě je zánovní kuchyňská linka Dům je nově natřený zateplovacím nátěrem Okna byla vyměněna za plastová Lokalita: V těsné blízkosti se nachází školka, škola a dětské hřiště, což činí lokalitu ideální pro rodiny s dětmi. V případě Vašeho zájmu Vám rádi zpracujeme nabídku na financování koupě tohoto bytu, pokud zvažujete prodej jiné nemovitosti, abyste mohli koupit tuto, pokusíme se najít řešení. Pro více informací a domluvení prohlídky kontaktujte makléřku Adélu z Century21 3D Reality.
Prodej bytu 4+1, 115 m2, Ostrava, ul. Sovova
Nabízíme k prodeji prostorný byt 4+1 o užitné ploše 115 m2 v žádané lokalitě Vítkovice, katastrální území Zábřeh-VŽ. Byt se nachází v cihlové budově…
Investiční příležitost 2 byty (celé patro) v centru Ostravy, Poštovní ul., s nájemníky.
Nabízíme ke koupi investiční byt o výměře 116,94 m, nacházející se ve 2. nadzemním podlaží cihlového domu s výtahem v samotném centru Ostravy, na…