Makléř: Opělová Dominika
Telefon: 724 377 ...
E-mail: opelova ...
Zobrazit celý kontaktTelefon: 724 377 831
E-mail: opelova@estyholding.cz
Nemovitost nabízí
ESTY holding a.s.
Národní 135/14, Praha
Zobrazit kontakt na RK777 114 302
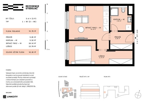
Nabízíme k prodeji byt 1+kk v Rezidenci Stodolní. Byt 3.A.4 o velikosti 44,76 m2 se nachází ve 3. nadzemním podlaží a nabízí západní prosluněnou dispozici s výhledem na přilehlý park. Díky rekuperaci vzduchu a dobře izolovaným oknům bude poskytovat maximálně možný klidný zážitek z bydlení. Dispozice zahrnuje prostorný obývací pokoj s kuchyní, komfortní ložnici s prostorem pro šatnu, velkorysou koupelnu spojenou s WC a praktickou předsíň s prostorem pro úložné systémy. Byt nabízí flexibilitu díky možnosti chytrého a estetického oddělení jednotlivých zón pomocí stavebně předdefinované příčky, která z oficiální dispozice 1kk byt rozdělí na efektivní a velkorysé 2kk. Rezidence Stodolní představuje nejmodernější bytový projekt v Ostravě z dílny ateliéru Bogle Architects a je součástí prestižní proměny centra města. Nová rezidenční čtvrť s pěší zónou a Galerií PLATO v bezprostřední blízkosti nabízí kombinaci moderního bydlení, klidu a vysokého standardu bezpečí. Nabízený byt je vhodný pro moderní pár, menší rodinu nebo jako investice s výborným potenciálem. Byt je vybaven plovoucími podlahami, přičemž barevné provedení standardu lze přizpůsobit přání klienta. Kombinace kvalitních oken s trojitým zasklením, solární elektrárny a centrálního horkovodního vytápění zajišťuje nízké provozní náklady. Budovy jsou dle energetického štítku zařazeny do kategorie „B - vysoce úsporné“. V podzemních garážích Rezidence Stodolní je k dispozici přibližně 120 parkovacích míst. Nabízena budou samostatná parkovací stání, stání se sklepní kójí i samostatné sklepy. Parkovací místa a sklepy nejsou zahrnuty v ceně bytu. Garáže budou vybaveny přípravou pro dobíjení elektromobilů, což zaručuje pohodlí i do budoucna. Výstavba projektu Rezidence Stodolní je již zahájena, kolaudace je plánována na konec roku 2027. Pro doplňující informace nás můžete kontaktovat telefonicky nebo osobně v kancelářích Organica - Scott-Weber, náměstí Biskupa Bruna 3399/5, 702 00 Moravská Ostrava. Schůzky si prosím rezervujte předem e-mailem nebo telefonicky. Těšíme se na setkání s Vámi.
Prodej bytu 1+kk 44,53 m2 v projektu Rezidence Stodolní
Nabízíme k prodeji byt 1+kk v Rezidenci Stodolní. Byt 2.A.3 o velikosti 44,53 m2 se nachází ve 2. nadzemním podlaží a nabízí západní prosluněnou…
Prodej, byty/1+kk, 22 m2, Palackého 918/70, 70200 Ostrava, Ostrava-město [ID 79012]
Jedinečná příležitost prodej bytu 1+kk v Ostravě. Součástí je zcela nová kuchyňská linka včetně spotřebičů, vše nové a nikdy nepoužité. Trouba,…