Makléř: Jan Skotnica
Telefon: 773 338 ...
E-mail: jan.sko ...
Zobrazit celý kontaktTelefon: 773 338 535
E-mail: jan.skotnica@kurko.cz
Nemovitost nabízí
Kurko reality
nám. Svobody 29, Frýdek - Místek
Zobrazit kontakt na RK705 008 007
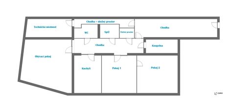
Nabízíme ke koupi tento vzdušný cihlový byt o dispozici 3+1 a celkové výměře přibližně 115 m2 na náměstí Svobody ve Frýdku-Místku, který nabízí vše, co od pohodlného městského bydlení očekáváte. Byt vás zaujme svou velkorysou rozlohou, vysokými stropy a příjemnou atmosférou starší zástavby. Je v původním stavu, a proto představuje skvělou příležitost pro rekonstrukci podle vlastních představ - ať už si přejete elegantní městský byt nebo stylové rodinné bydlení s historickým kouzlem. Lokalita potěší každého, kdo chce mít vše na dosah. V bezprostřední blízkosti se nachází zastávka MHD, obchody, škola, pošta a další občanská vybavenost. Neváhejte nás kontaktovat - rádi vám poskytneme více informací, domluvíme osobní prohlídku nebo vám byt ukážeme online přes videohovor. Náš zkušený hypoteční specialista vám navíc zdarma pomůže najít to nejlepší finanční řešení.
Prodej, Byt 3+1, Frýdek-Místek
Nabízíme bytovou jednotku o dispozici 3+1, 75 m2 v bytovém domě, ulice Novodvorská v části obce Frýdek. Bytová jednotka se nachází ve 4 patře,…
REZERVOVÁNO - Prodej bytu 3+1 , Na Aleji, Frýdek
Nabízíme Vám ke koupi byt 3+1 s balkonem ve vyhledávané části Frýdku na ulici Na Aleji jedna z těch lokalit, kde se bydlí opravdu dobře. Klidná…