Makléř: Ing. Podhajský Petr
Telefon: 774 980 ...
E-mail: petr.po ...
Zobrazit celý kontaktTelefon: 774 980 366
E-mail: petr.podhajsky@century21.cz
Nemovitost nabízí
CENTURY 21 3D Reality
Gregorova 1412/12, 741 01 Nový Jičín
www.century21.cz/kancelar-3d-reality
Zobrazit kontakt na RKvasrealitnipartner@century21.cz
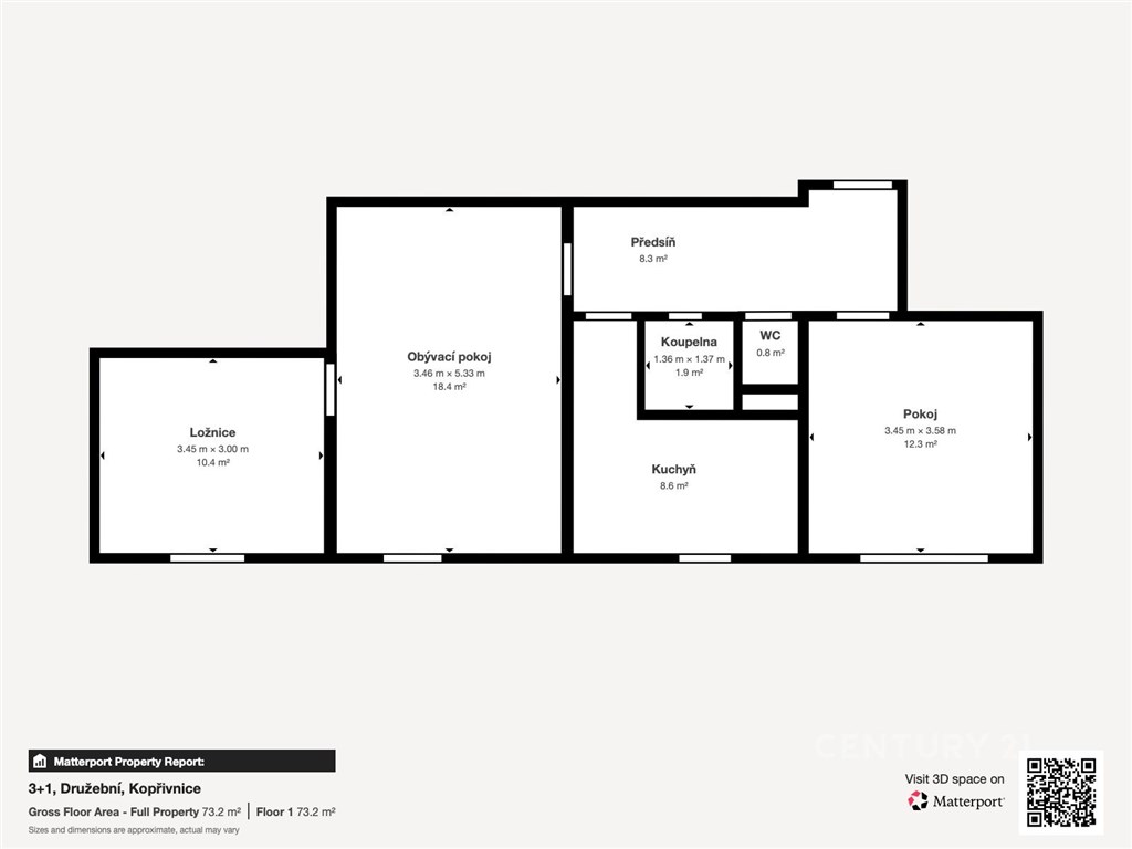
Nabízíme k prodeji družstevní byt 3+1 o výměře 64 m2 + lodžie, který se nachází v 5. NP revitalizovaného panelového domu s výtahem na ulici Družební v Kopřivnici. K bytu náleží sklepní kóje. Samotný byt sestává z prostorné vstupní chodby s dostatkem místa na vestavěné skříně a úložné prostory, obývacího pokoje se vstupem na lodžii, ložnice a dětského pokoje, kuchyně s kuchyňskou linkou na míru a koupelny se sprchovým koutem a samostatného WC. Byt prošel před cca 11 lety celkovou rekonstrukcí, kdy bylo vyzděno koupelnové jádro, nové omítky a sádrokartonové stropy, vybudována nová elektroinstalace v celém bytě, nové krytiny podlah a kuchyňská linka na míru. Byt je v udržovaném stavu umožňujícím jeho okamžité bezproblémové užívání. Byt se nachází v lokalitě plné zeleně s dosahem chůze centra města Kopřivnice. V okolí se nachází škola, školka, nákupní možnosti a další široká občanská vybavenost. Doporučujeme shlédnout náš 3D sken tohoto bytu, kde se dokonale seznámíte s jeho stavem a dispozicí z pohodlí Vašeho soukromí a v případě zájmu nás prosím kontaktujte a rádi se s Vámi uvidíme na osobní prohlídce.
PRODEJ BYTU 3+1, 68 m + balkón, Kopřivnice ul. Obránců míru 1306
Nabízíme k prodeji velmi pěkný a prostorný byt 3+1 o výměře 68 m s balkónem 3 m+ komora v oblíbené lokalitě města Kopřivnice, na ulici Obránců míru.…
Družstevní byt 3+1 s lodžií ve 2. patře nízkopodlažního domu Kopřivnice, ul. Francouzská
Exkluzivně nabízíme k prodeji světlý a prostorný družstevní byt 3+1 (70,61 m) s lodžií 5,5 m a sklepní kójí 2 m, který se nachází ve 2. nadzemním…