Makléř: Ing. Jana Slováčková
Telefon: 800 103 ...
E-mail: zakazni ...
Zobrazit celý kontaktTelefon: 800 103 010, 800 103 010
E-mail: zakaznicky.servis@rksting.cz
Nemovitost nabízí
Realitní kancelář STING, s.r.o.
1.máje 540, 739 61 Třinec
Zobrazit kontakt na RK800 103 010
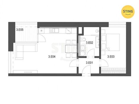
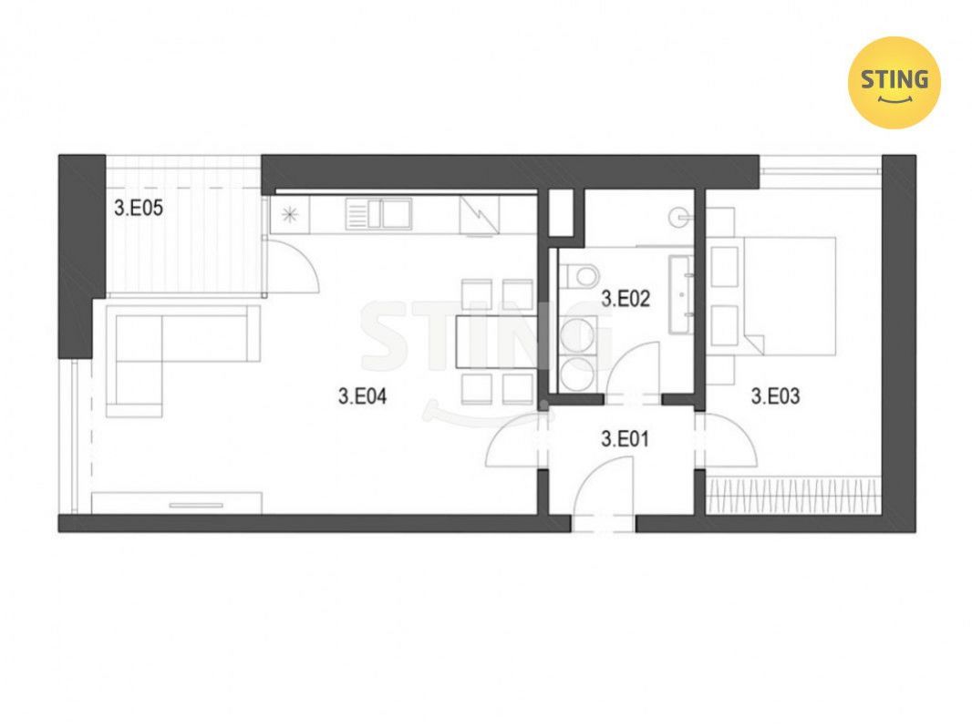
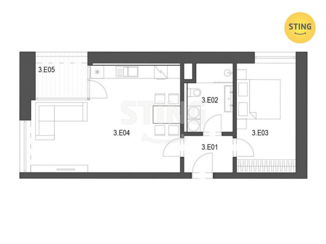
Nabízíme ke koupi moderní byt ve vyhledávané lokalitě Slezská Ostrava. Tento byt se nachází v jednom ze dvou třípodlažních domů uzavřeného rezidenčního areálu, který je vkusně začleněn do klidné okolní zástavby. Byt nabízí moderní dispoziční řešení a je vybaven kvalitními materiály ve vysokém standardu, který je již zahrnut v ceně např. klimatizace, venkovní žaluzie, podlahové vytápění a další. Interiér je navržen s důrazem na praktické, pohodlné a stylové bydlení. Součástí areálu je podzemní garáž s přímým vstupem do domu s výtahem. Uzavřený komplex nabízí také dva vnitřní dvory jeden s vjezdem a parkováním pro návštěvy, druhý jako klidovou zónu se zahradou, stromy, dětským hřištěm a relaxační zónou. Výborná poloha: Rezidence je umístěna v tiché části Slezské Ostravy, přitom v docházkové vzdálenosti od obchodů, škol, zdravotnických zařízení, restaurací i centra města. V blízkosti jsou rovněž lesy, řeka, cyklostezky a místa pro relaxaci i sport. Podlahová plocha bytu je 56,5 m2 a lodžie 4,8 m2, celková podlahová plocha bytu - 61,5 m2. K bytu je možné zakoupit venkovní parkovací stání nebo parkovací stání v 1. podzemním podlaží budovy. K dispozici jsou rovněž sklepní kóje. Parkovací stání a sklepní kóje nejsou součástí ceny bytu. Předpokládaný termín kolaudace - červen 2026. Neváhejte mě kontaktovat pro více informací ráda vám zodpovím veškeré dotazy. Do konce února 2026 nabízíme prostřednictvím našeho partnera úrokové sazby od 4,29 % p.a. Více informací Vám sdělí náš specialista na prohlídce. <a href="https://www.eurobydleni.cz/byty/3_kk/ostrava/obec-ostrava/prodej/"><strong>Prodej bytu 3+kk Ostrava</strong></a>
Prodej, byty/2+kk, 73.9 m2, Špálova 145/20, Přívoz, 70200 Ostrava, Ostrava-město [ID 77191]
Nabízíme k prodeji byt č. 9 v osobním vlastnictví o dispozici 2+kk a výměře 73,9 m. Nachází se ve 3. nadzemním podlaží kompletně zrekonstruovaného…
byt 2+kk, 65m2, v unikátní nové dřevostavbě, Mongolská ul., Ostrava Poruba,
Přemýšlíte o novém bydlení, které kombinuje moderní design s maximálním komfortem? Máme pro vás perfektní řešení. Proč zvolit tento domov? Tento…
Prodej bytu 2+kk Ostrava na Eurobydleni.cz